用途
通常情況下,球閥閥座材料采用非金屬材料,例如PTFE,因此限制了球閥的應用,通用球閥不能應用于高溫工況和介質為顆粒狀及除灰系統。針對這種情況,耐立經過多年努力研究開發出了金屬硬密封球閥,包括浮動式和固定式,從而使球閥在石油,化工,冶金,電力等行業得到了廣泛的應用。
金屬硬密封球閥的結構設計特點
耐立公司金屬硬密封球閥除了具有防止誤碼操作,防止閥桿飛出,設置驅動裝置安裝平臺等結構特點外,還具有如下獨特的特點。
采用先進的球體和閥座硬化技術
耐立公司金屬硬密封球閥的球體與閥座完全采用金屬對金屬的密封方式,為了確保閥門在各種溫度和壓力下的可靠密封,針對用戶的不同使用工況和要求,可以采用多種先進的球體和閥座的硬化技術,包括超音速噴涂,鎳基噴焊,表面特殊硬化,硬質合金噴焊以及采用高強度高硬度陶瓷材料等,球體和閥座的表面硬度一般可以達到HRC60以上,最高可達HRC74以上。密封面材料耐溫一般可以540℃,最高可達980℃。
材料的結合強度可以達到10000PSI以上,密封面材料還具有很好的耐摩擦,耐沖壓等性能。耐立金屬硬密封球閥能夠適用于絕大多數苛刻工況條件。
防止閥門在高溫下漲死
高溫工況下由于熱膨脹而容易引起球體與閥座的漲死,從而導致閥門無法開啟。耐立金屬硬密封球閥采用了碟簧或彈簧加載的密封結構,在高溫下靈比肩的熱膨脹可以被碟簧或彈簧所吸收,故能夠保證閥門在高溫下不會被漲死,并能夠在高溫下靈活啟閉。
安全的防火結構設計
閥門的密封面采用金屬對金屬密封結構,填料采用柔性石墨,墊片采用不銹鋼+柔性石墨結構。因此,閥門即使在火災情況下也能確保可靠的密封。
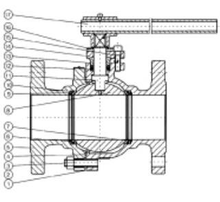
金屬硬密封浮動球閥典型結構及零部件組成


金屬硬密封浮動球閥的產品范圍見下表

金屬硬密封固定球閥典型結構及零部件組成

金屬硬密封固定球閥的產品范圍見下表
